Terapeutická komunita Heřmaň – Sananim

Architekt: Sporadical Místo: Heřmaň (okr. Písek) Rok: 2016 Stav: realizace Fotografie: Jan Kuděj

Komunita slouží klientům organizace SANANIM, kteří se zde po dobu 1 roku léčí z dlouhodobé závislosti na drogách. Terapie sestává z psychoterapie, pracovní terapie, sociální práce, sportovních aktivit a dalších složek.

Zemědělská usedlost je patrná už na mapách z let 1764-1768. Leží na samotě mezi dvěma koryty řeky Blanice v jižních Čechách. V letech 1995 a 2005 proběhly dvě přestavby, které nenávratně překryly starší vrstvy a členění objektu. Celkově byl objekt v přijatelném stavu, proto jsme se s investorem soustředili na hledání optimálního provozního řešení a nově dostavěné hmoty.

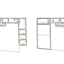
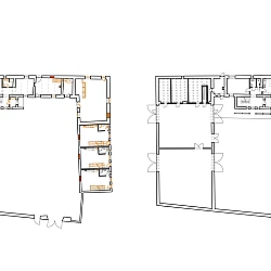
Potřebné prostory komunity nebylo možné do původního objektu umístit. Z toho důvodu je ve dvoře přistavěná spojovací chodba a komunitní místnost stojí vně půdorysu usedlosti. Bydlení terapeutů i klientů, jídelna s kuchyní, klubovna, kancelář a ordinace, technické a provozní místnosti, jsou v původních stavbách. Dostavěné prostory jsou dřevostavby a mají shodné konstrukční a materiálové řešení. Společné místnosti a prostory jsou propojeny materiálem podlahy – cihelnou dlažbou.

Komunitní místnost slouží pro pravidelnou skupinovou terapii a symbolicky vybíhá do sadu mimo obrys usedlosti. Má pro komunitu zvláštní význam, důležitý je motiv kruhu při uspořádání židlí nebo jako osvětlení na stropě. Chodba je neformální místo pro setkávání a denní provoz. Má vnitřní prosklený prostor a vnější krytý ochoz. Pro život komunity je důležité společné jídlo. Pokrmy připravují sami klienti. Jídelna je umístěna v rohu usedlosti, kde se zachovalo kamenné zdivo původního statku.

Původní dřevěné patro ve stodole je nově upraveno na neformální klubovnu komunity. Je to jeden velký prostor, kde se „mimo službu“ potkávají terapeuti s klienty. Vestavba je konstruována nezávisle na krovu a zateplena z vnitřní strany kamenného zdiva. Ubytování pro 20 klientů je v jednoduchých podkrovních pokojích. Vzniklo přestavbou původních patrových apartmánů a využitím prázdné půdy. Vložená společná komunikace je na obou koncích schodišti spojena s dvorní skleněnou chodbou. Část dispozice pro klienty je tak uzavřena do dalšího symbolického kruhu.

SANANIM is one of the largest non-governmental organizations in the Czech Republic that provides services in the area of prevention, treatment and re-socialization of non-alcoholic drug addictions. Therapeutic community is a facility for long-term, in-house treatment and social rehabilitation of approximately 20 clients.

Our strategy was to make the latest intervention clearly recognizable, but in function, detailing and materials, we wanted the old and new to remain linked. New volumes are wooden structure with light glass walls and spruce formwork or dark plywood cladding. We proposed local terracotta tiles for all floor finishes.

Some of the rooms have special importance to the Community. Community room – room where the group therapy takes place – is the only space that protrudes out of the farmstead circumference. The meaning of it is that the therapy is a special occasion. All troubles and memories are blown away to the orchard via sliding glass walls. The symbol of a circle is formed of simple lights on the ceiling or arrangement of chairs. Glass corridor inserted into the courtyard is a vivid place where clients meat and talk. It connects the courtyard to all spaces of the community. The Club is a spacious common room built inside the barn. It is the spot where clients and therapists meet informally. The clients alone prepare the food and cook. Daily meal is an important ritual. Dining room is set in the oldest corner of the farm, where the remains of old stone walls are visible. A small stone portal was restored to highlight the entrance to this room.

Fotografie

Výkresy