Areál volného času Prachatice

Architekt: Jakub Našinec Místo: Prachatice Rok: 2024 Stav: ověřovací studie

Čtvercová plocha v terénním zářezu. Periferie, zarostlá louka. Smutná budova. Dvory, dlouhé chodby, nízké střílny, stěny bez oken. Utilitární dopravní řešení. Přesto nebouráme, ale recyklujeme a doplňujeme. Všem srozumitelná změna - rozvinout co je funkční, obarvit šedivé, otevřít zavřené.

Navrhujeme zachovat a doplnit krajinný charakter, specifickou architekturu a stavební dispozici, nenáročné dopravní řešení. Respektujeme členění na chráněnou rovnou čtvercovou plochu a volnou aktivitu v okolí v přírodě. Považujeme za vhodné rozvíjet outdoorové činnosti, jedná se o místní zažité specifikum. Uvažujeme, jak zachovat každodenní využití bez ohledu na počasí a roční období.

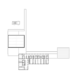
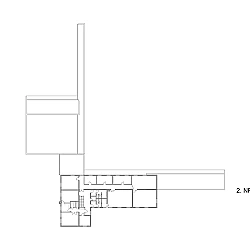
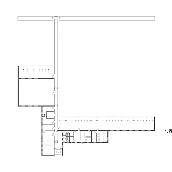
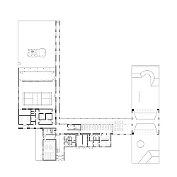
Díky terénní konfiguraci se jedná o autonomní území, zelený ostrov. Porosty na terénních svazích jsou objemné a kompaktní. Plocha areálu je členěna do 4 nádvoří, která pokaždé rámuje ze dvou stran architektura a ze dvou stran příroda. Za vysokými světlými omítnutými stěnami vystupují vyšší hmoty zvýrazněné tvarem a barvou. Chodby již nejsou bariéra ale podloubí pro kontakt a setkávání.

Každý ze 4 dvorů má specifický charakter. Největší plocha je určená pro hřiště a sportoviště. Je to intenzivní koláž barev a povrchů. Vnitřek a vnějšek propojuje betonový skatepark. Oblouková střecha nad částí skateparku je vizuální brána do areálu. Druhý dvůr je centrum lezení s venkovní stěnou, prostorem pro bouldering a parkourovým hřištěm. Mezi stromy může být natažena lanová cesta. Třetí, jihovýchodní, dvůr je nejklidnější. Proto je zde umístěno hřiště dětské skupiny a ohniště.

Čtvrtý dvůr je dlouhé prostranství podél příjezdu k areálu. Na straně sportovišť je pěší trasa, nová betonová panelka.

A square area in a terrain excavation. Periphery, overgrown meadow. A sad building. Courtyards, long corridors, low gun slits, walls without windows. Utilitarian transport solutions. Yet, we are not demolishing, but recycling and complementing. A change that is understandable to everyone – develop what is functional, color the gray, open the closed.

We propose to preserve and complement the landscape character, the specific architecture, and the building layout, as well as the modest transport solution. We respect the division into the protected, flat square area and the free activity space in the surrounding nature. We consider it appropriate to develop outdoor activities, as this is a local, established characteristic. We think about how to maintain everyday use, regardless of weather or season.

Thanks to the terrain configuration, this is an autonomous territory, a green island. The vegetation on the slopes is voluminous and compact. The site is divided into four courtyards, each framed by architecture on two sides and nature on two sides. Behind the high light-colored plastered walls, higher masses emerge, highlighted by shape and color. The corridors are no longer a barrier but a covered passage for contact and meetings.

Each of the four courtyards has a specific character. The largest area is designated for playgrounds and sports facilities. It is an intense collage of colors and surfaces. The interior and exterior are connected by a concrete skatepark. The arched roof over part of the skatepark serves as a visual gateway to the site. The second courtyard is a climbing center with an outdoor wall, bouldering space, and a parkour playground. A rope course can be stretched between the trees. The third, southeastern, courtyard is the most peaceful. Therefore, a playground for the children's group and a fire pit are located here. The fourth courtyard is a long space along the entrance to the site. On the sports facilities side, there is a pedestrian path, a new concrete panel road.

Vizualizace

Stav

Výkresy